
L’adresse
Impasse Beausoleil
38160 Saint-Marcellin

Appartements
T2 T3 T4 T5

Disponibilité
Deuxième semestre 2027

Prix
A partir de 138 000 €

Dispositif
VEFA TVA 5,5 %
L’Emeraude à Saint-Marcellin
Ce programme légèrement excentré du centre de la commune vous offrira un joli havre de paix. Il sera réparti en 3 ensembles : 2 composés de logements collectifs en R+1 et un autre composé de maisons individuelles. L’offre de logement est ainsi très variée et s’adapte à tous les besoins et à tous les budgets avec des appartements du T2 au T4 en duplex ou avec des maisons en T4 ou en T5. Les maisons disposeront chacune d’un garage et d’une place de stationnement. Une place de stationnement avec arceau sera vendue avec chaque appartement. Chaque logement disposera d’une terrasse généreuse ou d’un jardin.


Votre conseiller commercial :
Alexandre Rousselle –
06 75 43 11 08
Les atouts
Que vous recherchiez une maison ou un appartement, les logements de ce projet répondrons à vos attentes avec leurs agencements optimisés, leurs beaux espaces extérieurs et la tranquillité de ce secteur.
> Espaces verts avec aire de jeux.
> Appartements : chauffage collectif urbain et ballon thermodynamique individuel.
> Maisons : chauffage par pompes à chaleur air/eau individuelles.
> Carrelage grès cérame 45×45 dans tout le logement (hors chambres).
> Revêtement stratifié dans les chambres.
> Salle de bain : sèche-serviette, meuble vasque avec robinet mitigeur, miroir et éclairage LED.
> Faïence au droit des baignoire ou des douches.
> Volets roulants motorisés pour toutes les fenêtres.
> Peinture lisse blanche sur les murs et les plafonds.
> Pare baignoire ou pare douche fixe pour les logements équipés de baignoire.
> Nombreux espaces de rangements prévus.
> RE 2020.
> Fibre optique.
> Locaux vélos sécurisés.
Je souhaite partager cette page
Les photos du programme
Découvrez la maquette 3D
Les logements neufs disponibles
| N° lot | Surface (m2) | Etage | Annexe | Prix (€) | Plan / Contact |
|---|---|---|---|---|---|
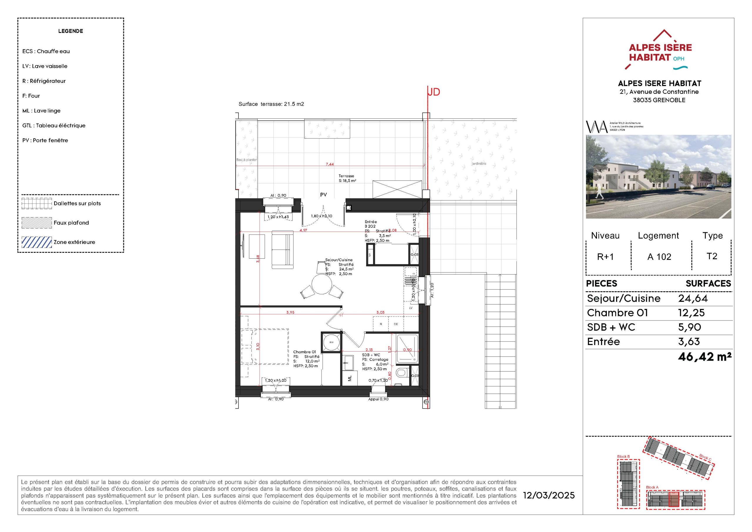
| A102 | 46,42 m² | 1 | Terrasse 21,50 m² | 138 000 € | Télécharger le plan |
| B102 | 48,43 m² | 1 | Terrasse 24,50 m² | 144 000 € | Télécharger le plan |
| N° lot | Surface (m2) | Etage | Annexe | Prix (€) | Plan / Contact |
|---|---|---|---|---|---|
| A001 | 73,79 m² | RC | Terrasse + jardin 114,00 m² | 198 000 € | Télécharger le plan |
| A002 | 67,11 m² | RC | Terrasse + jardin 116,00 m² | 199 000 € | Télécharger le plan |
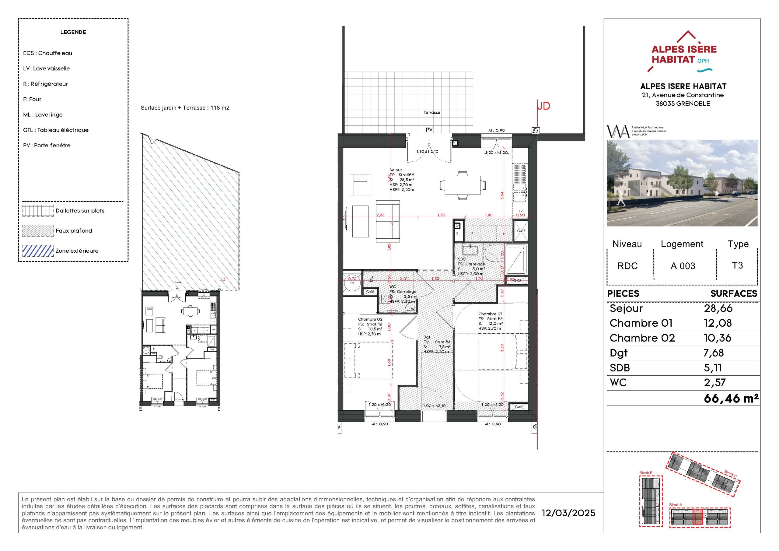
| A003 | 66,46 m² | RC | Terrasse + jardin 118,00 m² | 197 000 € | Télécharger le plan |
| A004 | 66,79 m² | RC | Terrasse + jardin 87,00 m² | 198 000 € | Télécharger le plan |
| A005 | 66,58 m² | RC | Terrasse + jardin 43,50 m² | 198 000 € | Télécharger le plan |
| B002 | 78,93 m² | RC | Terrasse + jardin 68,50 m² | 207 000 € | Télécharger le plan |
| N° lot | Surface (m2) | Etage | Annexe | Prix (€) | Plan / Contact |
|---|---|---|---|---|---|
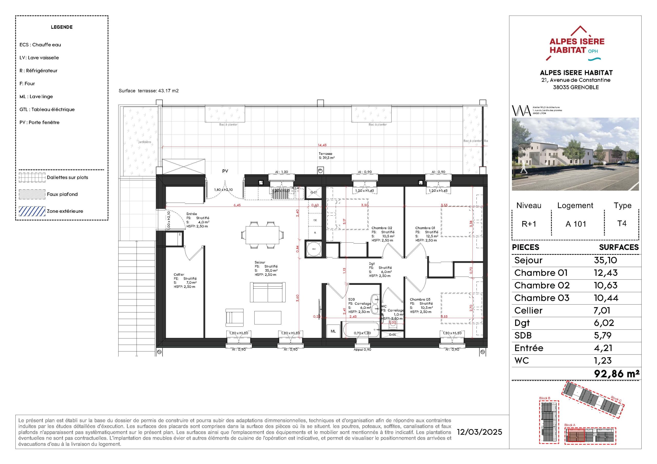
| A101 | 92,86 m² | 1 | Terrasse 43,17 m² | 275 000 € | Télécharger le plan |
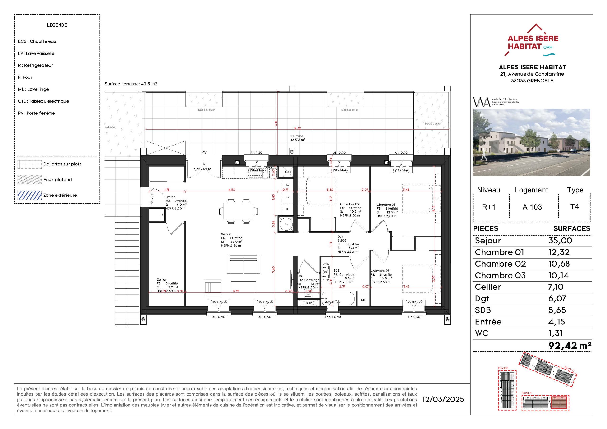
| A103 | 92,42 m² | 1 | Terrasse 43,50 m² | 274 000 € | Télécharger le plan |
| B001 | 85,58 m² | RC | Terrasse + jardin 74,50 m² | 254 000 € | Télécharger le plan |
| B003 | 91,38 m² | RC | Terrasse + jardin 60,00 m² | 244 000 € | Télécharger le plan |
| B101 | 80,74 m² | 1 | Terrasse 40,50 m² | 239 000 € | Télécharger le plan |
| N° lot | Surface (m2) | Etage | Annexe | Prix (€) | Plan / Contact |
|---|---|---|---|---|---|
| B103 | 88,53 m² | 1 + 2 | Terrasse 23,05 m² | 263 000 € | Télécharger le plan |
| B104 | 89,63 m² | 1 + 2 | Terrasse 35,50 m² | 266 000 € | Télécharger le plan |
| N° lot | Surface (m2) | Etage | Annexe | Prix (€) | Plan / Contact |
|---|---|---|---|---|---|
| C101 | 92,22 m² | RC + 1 | Terrasse + jardin 157,00 m² | 289 000 € | Télécharger le plan |
| C102 | 92,12 m² | RC + 1 | Terrasse + jardin 153,00 m² | 286 000 € | Télécharger le plan |
| C103 | 92,17 m² | RC + 1 | Terrasse + jardin 178,00 m² | 286 000 € | Télécharger le plan |
| N° lot | Surface (m2) | Etage | Annexe | Prix (€) | Plan / Contact |
|---|---|---|---|---|---|
| C104 | 113,02 m² | RC + 1 | Terrasse + jardin 201,50 m² | 348 000 € | Télécharger le plan |
| C105 | 112,86 m² | RC + 1 | Terrasse + jardin 217,00 m² | 349 000 € | Télécharger le plan |
| N° lot | Surface (m2) | Etage | Annexe | Prix (€) | Plan / Contact |
|---|---|---|---|---|---|
| 13 m² | 8 000 € | Télécharger le plan | |||
| 13 m² | 8 000 € | Télécharger le plan |
| N° lot | Surface (m2) | Etage | Annexe | Prix (€) | Plan / Contact |
|---|---|---|---|---|---|
| de 4,76 à 6,17 m² | 2 500 € | Télécharger le plan |
La situation géographique
Cette offre vous intéresse ?

Simulateur d’accession
Découvrez si vous êtes éligible à ce programme
Simulateur d’accession
Vous effectuez une simulation pour le programme :
Dispositif :

Prendre contact
Vous souhaitez en savoir plus sur ce programme ?








